Klussers opgelet! Zeer ruime tweekapper met maar liefst 179m2 woonoppervlakte, 5 slaapkamers waarvan een royale master bedroom, twee badkamers, inpandige garage en grote tweede verdieping. Zonnig gelegen achtertuin op het zuidwesten.
Deze woning is gelegen aan een rustige straat op loopafstand van het buitengebied en het centrum van Valkenswaard.
Omschrijving Tweekapper
Begane grond:
Via de voortuin te bereiken hal met meterkast en toegang tot toilet, trapopgang en woonkamer.
Ruime half betegelde toiletruimte voorzien van closet en fonteintje.
Woonkamer:
De ruime woonkamer geniet van veel lichtinval door raampartijen aan de voor- en achterzijde. Voorzien van een mozaïek parketvloer, schuifpui en een openhaard.
Keuken:
Open keuken in u-opstelling met elektrische kookplaat en oven. Vanuit de keuken is er toegang tot de achtertuin en een tussenportaal.
Via het tussenportaal is de inpandige garage te bereiken. Welke voorzien is van een kantelpoort en een loopdeur, ook zijn hier de aansluitingen voor de wasapparatuur gelegen.
Eerste verdieping:
Overloop met toegang tot 3 slaapkamers, badkamer en vaste trap naar de tweede verdieping.
Slaapkamers
- Zeer royale master bedroom opgesplitst in twee gedeelten aan achterkant gelegen. Slaapgedeelte met deur naar balkon. Tweede gedeelte met douche, toilet, vaste wastafel en dakraam.
- Tweede slaapkamer aan voorzijde met openslaande deuren naar balkon.
- Derde slaapkamer aan achterzijde.
Badkamer:
Ruime badkamer voorzien van vaste wastafel, ligbad, toilet en deur naar balkon voorzijde.
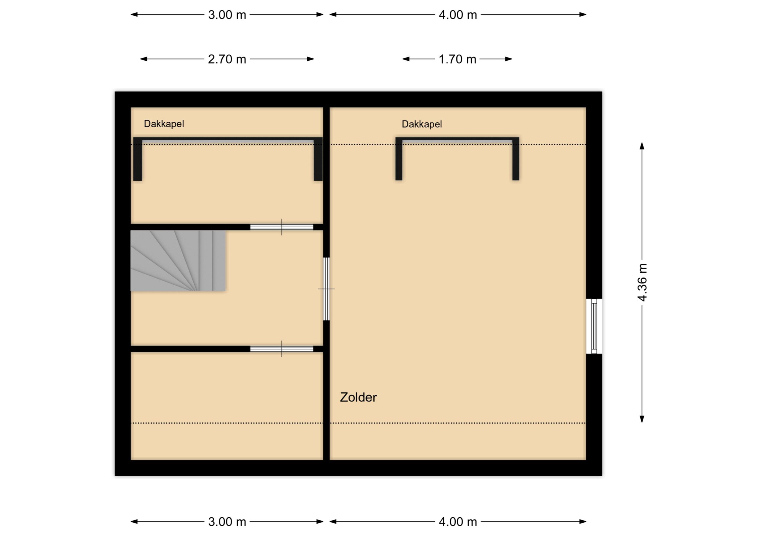
Tweede verdieping:
Ruime tweede verdieping met twee slaapkamers, beide met dakkapel. Bergruimte voorzien van cv-ketel (circa 2015/2016, eigendom).
Buiten:
Voortuin met looppad naar voordeur en oprit voor parkeren op eigen terrein.
Op het zuidwesten gelegen achtertuin met volop privacy, overdekt terras en berging.
Bijzonderheden:
- Zeer ruime woning met 5 slaapkamers, mogelijkheid tot 6;
- De koper dient rekening te houden met moderniseringswerkzaamheden;
- Zonnig gelegen achtertuin met overdekt terras:
- Balkons over de hele breedte aan voor en achterzijde van de woning;
- 5 slaapkamers waarvan een royale master bedroom met eigen badkamer;
- Inpandig te bereiken ruime garage;
- Gelegen aan steeds autoluwer wordende straat, nabij verschillende bossen, bushalte en centrum;
- Bouwjaar circa 1974;
- Inhoud circa 640 m³;
- Perceel oppervlakte 240 m²;
- Woonoppervlakte circa 179 m²;
Tot zekerheid van de nakoming van de verplichtingen van de koopovereenkomst dient de kopende partij, binnen zes weken na het tot stand komen van de koopovereenkomst, een bankgarantie (10% van de koopsom) te stellen bij een Nederlandse bankinstelling c.q. een waarborgsom (10% van de koopsom) te storten bij de notaris.
Brochure downloaden:
- Updated On:
- 12 september 2022
- 5 Slaapkamers
- 2 Badkamers
- Inpandig Garages
- 640 m2
- Bouwjaar: 1974

































































